普宁gdp2020_普宁肠粉
时间:2020-12-21 13:59 类别:热点图片
2020年各地GDP排名
png,983x621,23709b
普宁2020年上半年主要经济数据出炉 gdp达276.14亿
png,923x621,55878b
普宁2020年上半年主要经济数据出炉 gdp达276.14亿
png,419x797,48442b
普宁2020年上半年主要经济数据出炉 gdp达276.14亿
png,519x797,21580b
普宁2020年上半年主要经济数据出炉 gdp达276.14亿
jpg,1122x793,107242b
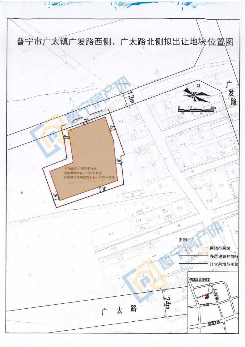
翘首以盼 2020年普宁首场土拍终于来了
jpg,957x1399,85380b
2020年 gdp究竟能不能成功 保6
jpeg,695x1000,164422b
翘首以盼 2020年普宁首场土拍终于来了
409x640,47380b
2020年前三季度gdp总量前十城市出炉,重庆取代广州列第四
jpeg,1162x640,100381b
2020上半年中国城市gdp百强榜如下:
jpeg,835x1000,127668b
位置曝光 2020年普宁第七批次土地征收补偿安置方案公告
jpeg,423x640,34940b
广东省新型城镇化规划出炉 2020年的揭阳和普宁将是
jpeg,331x618,24728b
2020年普宁4月经济运行情况如何 一组数据告诉你
jpeg,665x1080,208902b
2020年普宁楼市值得关注的新盘都在这里了
jpg,983x621,44635b
2020年普宁一季度经济运行数据出炉,房地产投资增长168.4
jpg,983x621,50106b
2020年普宁一季度经济运行数据出炉,房地产投资增长168.4
png,327x576,33032b
2020年前三季度北京市经济运行情况分析 gdp同比增长0.1 图
jpeg,778x1000,114670b
位置曝光 2020年普宁第七批次土地征收补偿安置方案公告
jpg,561x500,270950b
到2020年 成都临空经济示范区gdp将达600亿元以上
jpg,983x621,46872b
2020年普宁一季度经济运行数据出炉,房地产投资增长168.4
jpg,1358x1920,723910b
和曲靖经开区在内的中心城区,将发展为到2020年人口100万,gdp1200亿元
推荐阅读
相关文章阅读
- 最新文章
- 总排名
- 每月排行
- 推荐阅读
- 阅读排行
- 延伸阅读














